PROJECT  GALLERY


Melting Pot: King of Prussia, PA

King of Prussia Melting Pot was a relocation, and was very similar to a new build. The design showcases a lively bar close to the entrance to draw customers in while creating intimate moments through lighting and design elements such as LED candle features, a fire focal and a ceiling trellis. The Melting Pot is all about creating The Perfect Night Out through spatial design flow for customers and staff alike as well as ambiance for whatever occasion you are celebrating.


Melting Pot: Rogers, AR

The Melting Pot in Rogers, AR is the most recent new build for The Melting Pot Restaurants Inc. and is currently under construction with an opening date for fall of 2025. Below you will see floorplans, a reflected ceiling plan, elevations, and details developed in house by me.


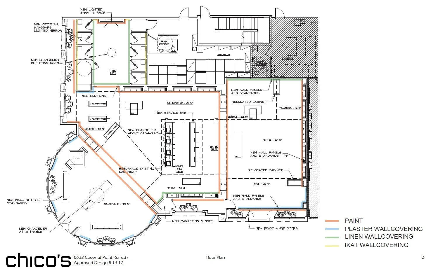
Chico’s: Coconut Point, FL

For over 20 years, Chico’s locations had the same feel - dark wood and leopard print fabrics and wallcoverings. I was tasked to create a refresh initiative to lighten, brighten, and modernize the space and feel while keeping as many existing elements as possible. Through fabric, paint, light fixtures, and millwork elements, I was able to create a fresh new take on the Chico’s brand while holding true to the brands origins.


Macy’s: Junior’s Department Reinvent

While at Macy’s Inc., I was tasked to create a refresh concept for the Junior’s Department. The idea was to take existing locations, and adapt them to how young women shop today. I came up with a shop in shop idea that separates the brands by “type of girl” and give each shop its own distinguishing elements. By adding “interruptor” fixtures, each shop would have a smaller footprint making it easier and more comfortable to shop.


Macy’s: Ponce, PR

The Macy’s location in Ponce Puerto Rico showed many challenges from the beggining of the Project. Due to structural costs, this project was immediately over budget. I collaborated with the construction team to redesign details, achieving the same look and feel, while cutting $3 million from the overall budget.


Renderings: Travel Traders for Gaylord Opryland, TN

Travel Traders is a company that owns and manages gift shops across the US. These are rendering I created for them for their proposal to be awarded lease locations at the Gaylord Opryland.


Signage Design: Kroger & Sun Harvest

Experience in environmental graphic design focusing on signage and custom murals. The Bulk Foods sign was created for Sun Harvest Farmer’s Market. To enhance the farmer’s market feel, this sign was crated to have the appearance of peeling paint on barnwood.

The sign below was created for Kroger’s wine department. A metal T-bracket was designed to mount on top of the gondola. The signage shows a subtle grape leaf and verbiage “burned” into the wood.